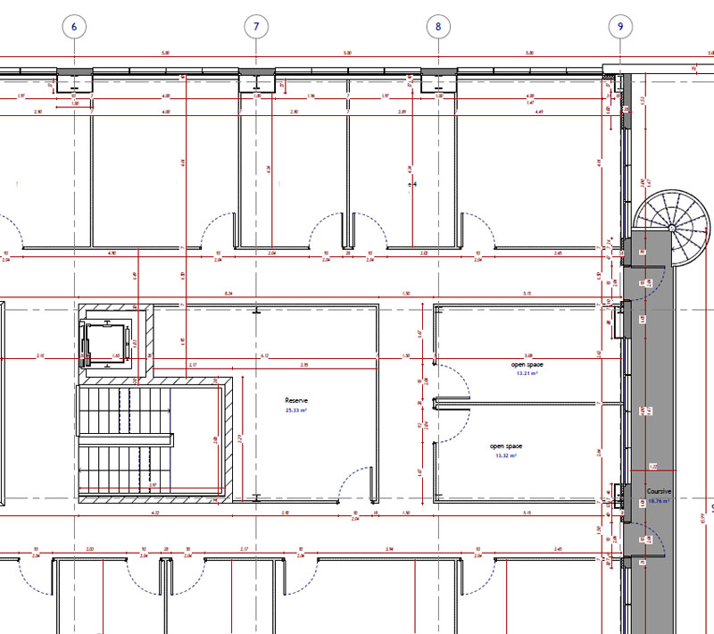
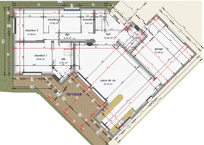
Réalisations
Projets d’habitation, tertiaire et industriel
Des projets variés, conçus avec précision et cohérence
Qu’il s’agisse d’une maison individuelle, d’une extension, d’un local professionnel ou d’un bâtiment industriel, chaque projet est étudié avec attention pour répondre aux contraintes du site, du budget et des règles d’urbanisme.
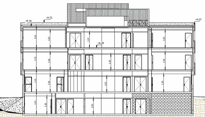
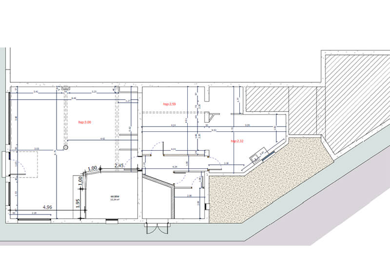
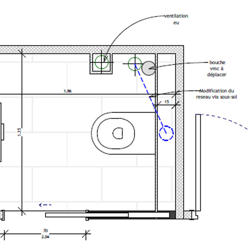
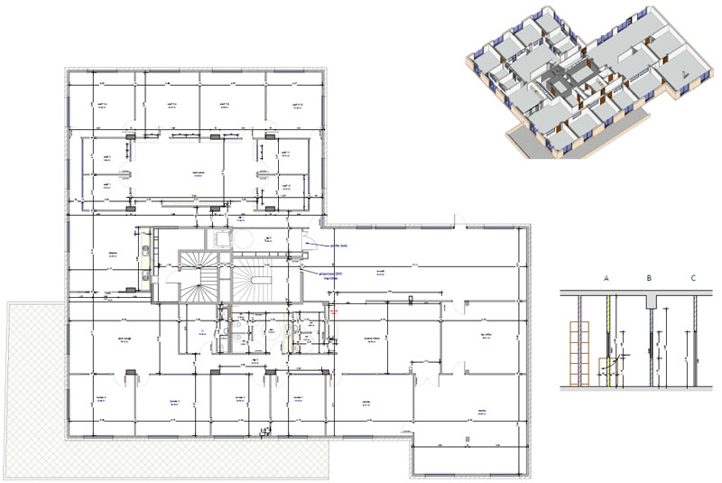
Plans, modélisation 3D, dossiers administratifs ou maquettes techniques : les réalisations présentées illustrent la diversité des missions confiées et la qualité du travail fourni.
















































































